00件
最近見た物件
00件
検討リスト
梅田の事務所のことなら梅田テナントナビ > (店舗(賃貸))地域から探す > 大阪市北区 > MKビートルビル
梅田エリアの店舗物件。業種制限はありません。


※1. 仲介手数料は仮の価格となりますので、実際の価格に関してはお気軽にお問い合わせ下さい。
※2. 1か月を30日として計算しています。

| 所在地 | 大阪府大阪市北区堂山町2-11 | ||
|---|---|---|---|
| 交通 | |||
| 坪数(面積) | 8.85坪(29.28㎡) | ||
| 賃料/坪単価 | 66万円/7.46万円 | 管理費・共益費 | 49,500円 |
| 敷金/礼金/保証金 | 6ヶ月/0ヶ月/- | 償却/敷引 | -/- |
| 更新料 | - | 権利金/雑費 | -/- |
| 造作譲渡金 | - | 駐車場/月額料金 | -/- |
| 保険加入/料金 | 有/- | 保険名/保険期間 | -/- |
| 保証人代行義務 | - | 保証会社 | - |
| 保証会社詳細 | - | 向き | - |
| 築年月(築年数) | 2008年 10月 (築17年) | 契約期間 | 2年 |
| 種別/構造 | 店舗一部/鉄骨造 | 用途地域 | - |
| 部屋/所在階/階建 | -/3階/5階建 地下1階 | 総戸数 | - |
| 現況/引渡時期 | 賃貸中/相談 | 取引態様 | 一般媒介 |
| 物件番号 | 59266508 | 取引条件の有効期限 | 2025年12月12日 |
| 設備条件 |
|
||
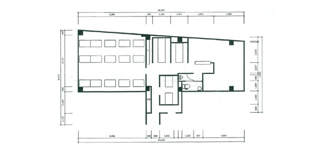
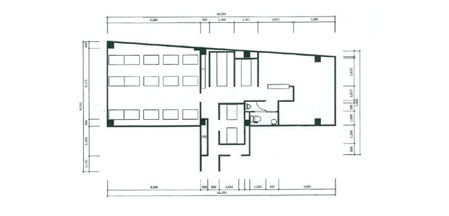
| 備考 | 2駅利用できる場所にあるので利便性が高いです。トイレは2ヶ所あります。様々な設備が整っているので、飲食店としても利用可能です。賃料は66万円です。メリットの豊富さから需要の高い好立地。周辺環境の雰囲気を左右する商店街の雰囲気もバッチリ。インテリアのアレンジが自由にできるので、飲食店に適しています。 | ||
| 取扱会社 |
|
||
| QRコード |
このQRコードを読み取ることで、スマホでも物件情報を確認できます。 |
||
※地図上に表示される物件の位置は付近住所に所在することを表すものであり、実際の物件所在地とは異なる場合がございます。
MKビートルビルに関するこだわり条件から探す
大阪市北区以外の市区町村から探す
大阪市北区の町名から探す