00件
最近見た物件
00件
検討リスト
梅田の事務所のことなら梅田テナントナビ > (店舗(賃貸))地域から探す > 大阪市北区 > 富士ビル
視認性抜群。人気のエリアです。


※1. 仲介手数料は仮の価格となりますので、実際の価格に関してはお気軽にお問い合わせ下さい。
※2. 1か月を30日として計算しています。

| 所在地 | 大阪府大阪市北区梅田2丁目1-18 | ||
|---|---|---|---|
| 交通 | |||
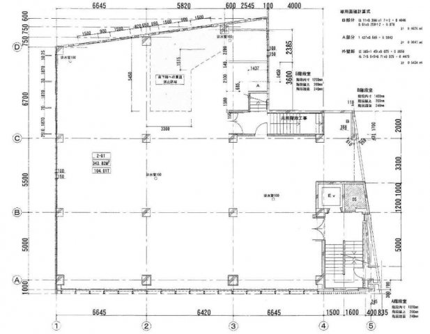
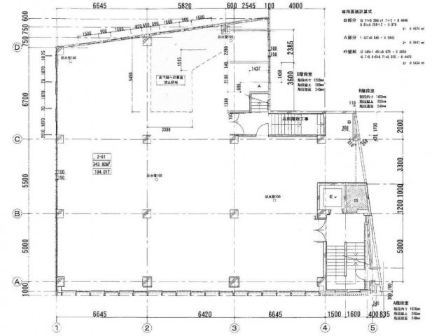
| 坪数(面積) | 104.00坪(343.82㎡) | ||
| 賃料/坪単価 | 388.9974万円/3.74万円 | 管理費・共益費 | - |
| 敷金/礼金/保証金 | 10ヶ月/0ヶ月/- | 償却/敷引 | -/- |
| 更新料 | - | 権利金/雑費 | -/- |
| 造作譲渡金 | - | 駐車場/月額料金 | -/- |
| 保険加入/料金 | 有/- | 保険名/保険期間 | -/- |
| 保証人代行義務 | - | 保証会社 | - |
| 保証会社詳細 | - | 向き | - |
| 築年月(築年数) | 1967年 7月 (築58年) | 契約期間 | 定期借家 6年 |
| 種別/構造 | 店舗事務所/鉄骨造 | 用途地域 | - |
| 部屋/所在階/階建 | -/2階/5階建 地下1階 | 総戸数 | - |
| 現況/引渡時期 | 空家/相談 | 取引態様 | 一般媒介 |
| 物件番号 | 64008517 | 取引条件の有効期限 | 2026年04月16日 |
| 設備条件 |
|
||
| 備考 | ぜひ一度見ていただきたい、「富士ビル」です。自分のお店として飲食店を開きたい方に適した建物です。周辺に駅が二つあり、交通の利便性が高いです。周辺には、徒歩4分で利用できる駅があります。礼金不要なので初期費用を抑えたい方におすすめです。軽飲食入居可能。お気軽にお問い合わせ下さい。存在感のあり、視認性が良好です。 | ||
| 取扱会社 |
|
||
| QRコード |
このQRコードを読み取ることで、スマホでも物件情報を確認できます。 |
||
※地図上に表示される物件の位置は付近住所に所在することを表すものであり、実際の物件所在地とは異なる場合がございます。
富士ビルに関するこだわり条件から探す
大阪市北区以外の市区町村から探す