00件
最近見た物件
00件
検討リスト
梅田の事務所のことなら梅田テナントナビ > (事務所(賃貸))地域から探す > 大阪市北区 > 南森町パークビル
「南森町パークビル」のここがイチオシ。行く先に応じて安い経路を選べる、3駅利用可能な物件です。暑い日も寒い日も使えるエアコンが付いており、空調管理に便利。茶碗を洗ったり美味しいお茶を作ったりできる給湯室があります。この物件は月16.83万円と、グレードの高い物件となっております。空いている駐車場があるので、近くに車を駐車できます。新しく開業したい方にオススメ、オフィスにもなる物件です。


※1. 仲介手数料は仮の価格となりますので、実際の価格に関してはお気軽にお問い合わせ下さい。
※2. 1か月を30日として計算しています。
| 所在階 | 賃料/坪単価 | 管理費 | 敷金/礼金/保証金/償却/敷引 | 坪数/面積 | 詳細 | 検討リスト |
|---|---|---|---|---|---|---|
| 要相談 / 要相談 | - | 0ヶ月/ 0ヶ月/ 12ヶ月/ -/ - | 26.80坪 / 88.60㎡ | 詳細を見る | 追加する |

| 所在地 | 大阪府大阪市北区西天満5丁目1-3 | ||
|---|---|---|---|
| 交通 | |||
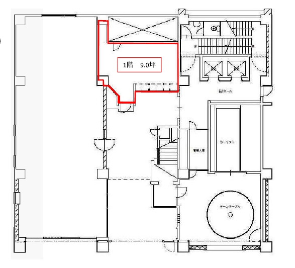
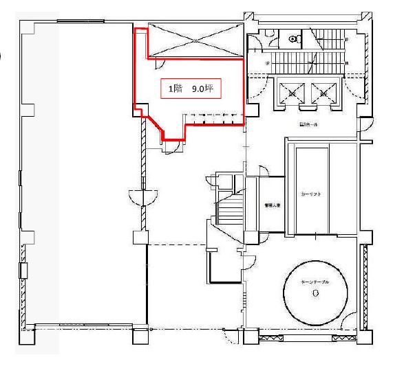
| 賃料/坪単価 | 16.83万円/1.87万円 | 坪数(面積) | 9.00坪(29.75㎡) |
| 管理費・共益費 | 29,700円 | 敷金/礼金/保証金 | 0ヶ月/0ヶ月/180万円 |
| 償却/敷引 | -/- | 更新料 | - |
| 権利金/雑費 | -/- | ||
| 造作譲渡金 | - | 駐車場/月額料金 | 空有(4台)/25,000円 (税込) |
| 保険加入/料金 | 有/- | 保険名/保険期間 | -/- |
| 保証人代行義務 | - | 保証会社 | - |
| 保証会社詳細 | - | 向き | - |
| 築年月(築年数) | 1978年 10月 (築47年) | 契約期間 | 2年 |
| 種別/構造 | 事務所/鉄骨鉄筋コンクリート | 部屋/所在階/階建 | 1階/1階/9階建 地下1階 |
| 総戸数 | - | 現況/引渡時期 | 空家/相談 |
| 取引態様 | 一般媒介 | 用途地域 | - |
| 物件番号 | 94253247 | 取引条件の有効期限 | 2026年04月26日 |
| 設備条件 |
|
||
| 備考 | 新着情報:南森町パークビルの空室情報ならコチラ。こちらの物件は機械式駐車場がご利用いただけます。賃料は16.83万円です。茶碗を洗ったり美味しいお茶を作ったりできる給湯室があります。ご利用いただける駅が3駅以上ある物件です。4台分の駐車スペースの空きあり。駐車可能スペースがあるので遠くへの駐車が不要です。 | ||
| 取扱会社 |
|
||
| QRコード |
このQRコードを読み取ることで、スマホでも物件情報を確認できます。 |
||
※地図上に表示される物件の位置は付近住所に所在することを表すものであり、実際の物件所在地とは異なる場合がございます。
南森町パークビルに関するこだわり条件から探す