00件
最近見た物件
00件
検討リスト
梅田の事務所のことなら梅田テナントナビ > (事務所(賃貸))地域から探す > 大阪市北区 > 阪神産経桜橋ビル
阪神産経桜橋ビル:東西線北新地にも近くて便利。オフィス街の地域となっているのでIT向けとなっております。お車をお持ちの方は見てください。今なら駐車場も空いてますよ。徒歩3分に駅があるので、歩きでも楽々とアクセスが出来ます。

| 所在地 | 大阪府大阪市北区梅田2丁目4-13 | ||
|---|---|---|---|
| 交通 | |||
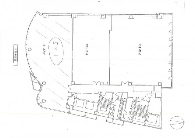
| 賃料/坪単価 | 要相談/要相談 | 坪数(面積) | 54.95坪(181.67㎡) |
| 管理費・共益費 | 232,810円 | 敷金/礼金/保証金 | 0ヶ月/0ヶ月/12ヶ月 |
| 償却/敷引 | -/- | 更新料 | - |
| 権利金/雑費 | -/- | ||
| 造作譲渡金 | - | 駐車場/月額料金 | 空有/55,000円 (税込) |
| 保険加入/料金 | 有/- | 保険名/保険期間 | -/- |
| 保証人代行義務 | - | 保証会社 | - |
| 保証会社詳細 | - | 向き | 南 |
| 築年月(築年数) | 1998年 3月 (築28年) | 契約期間 | 2年 |
| 種別/構造 | 事務所/鉄骨鉄筋コンクリート | 部屋/所在階/階建 | -/5階/11階建 地下2階 |
| 総戸数 | - | 現況/引渡時期 | 空家/相談 |
| 取引態様 | 一般媒介 | 用途地域 | - |
| 物件番号 | 56167105 | 取引条件の有効期限 | 2026年04月26日 |
| 設備条件 |
|
||
| 備考 | 「阪神産経桜橋ビル」のここがイチオシ!駅から近く周辺環境も良好な駅から徒歩3分の立地!駐車スペースも空いているので、車をお持ちの方は検討してみてはいかがですか!好立地で、不便に感じる事はありません!IT向けにもなっており、用途も様々!ロードサイドの店舗物件は、広い敷地を利用できます(^_^) | ||
| 取扱会社 |
|
||
| QRコード |
このQRコードを読み取ることで、スマホでも物件情報を確認できます。 |
||
※地図上に表示される物件の位置は付近住所に所在することを表すものであり、実際の物件所在地とは異なる場合がございます。
阪神産経桜橋ビルに関するこだわり条件から探す