00件
最近見た物件
00件
検討リスト
梅田の事務所のことなら梅田テナントナビ > (事務所(賃貸))地域から探す > 大阪市北区 > ショーレイビル
「ショーレイビル」のここがイチオシ。OAフロアのため、ケーブル類での躓きを予防できます。給湯室にミニコンロがあります。ご利用できる駅は3駅以上あり、アクセスの良い立地です。エアコン付きなので暑い日も寒い日も安心して過ごせます。賃料は11.035万円です。多くの好評を頂いている、24時間利用可能。


※1. 仲介手数料は仮の価格となりますので、実際の価格に関してはお気軽にお問い合わせ下さい。
※2. 1か月を30日として計算しています。

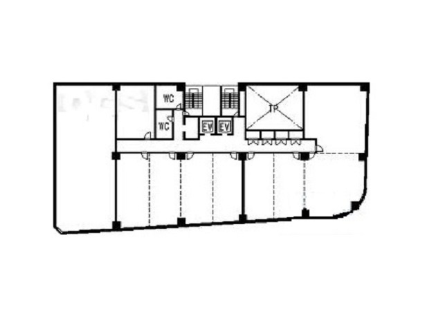
| 所在地 | 大阪府大阪市北区豊崎3丁目4-14 | ||
|---|---|---|---|
| 交通 | |||
| 賃料/坪単価 | 11.035万円/1.04万円 | 坪数(面積) | 10.56坪(34.92㎡) |
| 管理費・共益費 | 29,040円 | 敷金/礼金/保証金 | 0ヶ月/0ヶ月/123.084万円 |
| 償却/敷引 | -/- | 更新料 | - |
| 権利金/雑費 | -/- | ||
| 造作譲渡金 | - | 駐車場/月額料金 | 空無/- |
| 保険加入/料金 | 有/- | 保険名/保険期間 | -/- |
| 保証人代行義務 | - | 保証会社 | - |
| 保証会社詳細 | - | 向き | - |
| 築年月(築年数) | 1988年 2月 (築38年) | 契約期間 | 2年 |
| 種別/構造 | 事務所/鉄骨鉄筋コンクリート | 部屋/所在階/階建 | 8階/8階/9階建 |
| 総戸数 | - | 現況/引渡時期 | 空家/相談 |
| 取引態様 | 一般媒介 | 用途地域 | - |
| 物件番号 | 62526422 | 取引条件の有効期限 | 2026年04月26日 |
| 設備条件 |
|
||
| 備考 | ぜひ一度見ていただきたい、「ショーレイビル」です。賃料は11.035万円です。2つの路線が利用可能で、片方の路線にトラブルがあっても別ルートが使えます。エレベーターが2基付いています。エアコン付きなので、室内の温度調整が簡単です。周辺には、徒歩4分で利用できる駅があります。24時間利用可能なので、時間に縛られる事がありません。 | ||
| 取扱会社 |
|
||
| QRコード |
このQRコードを読み取ることで、スマホでも物件情報を確認できます。 |
||
※地図上に表示される物件の位置は付近住所に所在することを表すものであり、実際の物件所在地とは異なる場合がございます。
ショーレイビルに関するこだわり条件から探す