00件
最近見た物件
00件
検討リスト
梅田の事務所のことなら梅田テナントナビ > (店舗(賃貸))地域から探す > 大阪市北区 > DEGUCHI UMEDAビル
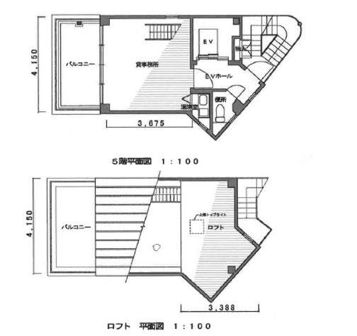
多くの方からご好評頂いているDEGUCHI UMEDAビルのご紹介です。2駅利用できる場所にあるので利便性が高いです。立地で選ぶ方におススメな好立地です。5階メゾネットをおしゃれに利用ください。


※1. 仲介手数料は仮の価格となりますので、実際の価格に関してはお気軽にお問い合わせ下さい。
※2. 1か月を30日として計算しています。

| 所在地 | 大阪府大阪市北区堂山町18-3 | ||
|---|---|---|---|
| 交通 | |||
| 坪数(面積) | 10.70坪(35.37㎡) | ||
| 賃料/坪単価 | 20.009万円/1.87万円 | 管理費・共益費 | 47,080円 |
| 敷金/礼金/保証金 | 0ヶ月/0ヶ月/109.14万円 | 償却/敷引 | 60.027万円/- |
| 更新料 | - | 権利金/雑費 | -/- |
| 造作譲渡金 | - | 駐車場/月額料金 | 無/- |
| 保険加入/料金 | 有/- | 保険名/保険期間 | -/- |
| 保証人代行義務 | - | 保証会社 | - |
| 保証会社詳細 | - | 向き | - |
| 築年月(築年数) | 2004年 3月 (築22年) | 契約期間 | 2年 |
| 種別/構造 | 店舗事務所/鉄骨造 | 用途地域 | - |
| 部屋/所在階/階建 | 5階/5階/5階建 | 総戸数 | - |
| 現況/引渡時期 | 空家/相談 | 取引態様 | 一般媒介 |
| 物件番号 | 74343783 | 取引条件の有効期限 | 2026年04月16日 |
| 設備条件 |
|
||
| 備考 | 2駅利用できる立地となっていて、アクセスが良いです。賃料は20.009万円です。好立地であり、利便性の高い環境にあります。ロードサイドの店舗物件は、低いリスクで営業に挑戦できます。店舗移転におススメですが、重飲食不可です。 | ||
| 取扱会社 |
|
||
| QRコード |
このQRコードを読み取ることで、スマホでも物件情報を確認できます。 |
||
※地図上に表示される物件の位置は付近住所に所在することを表すものであり、実際の物件所在地とは異なる場合がございます。
DEGUCHI UMEDAビルに関するこだわり条件から探す
大阪市北区以外の市区町村から探す