00件
最近見た物件
00件
検討リスト
梅田の事務所のことなら梅田テナントナビ > (店舗(賃貸))地域から探す > 大阪市北区 > 南森町パークビル
「南森町パークビル」のここがイチオシ♪周辺には、徒歩2分で利用できる駅があります♪駐車スペースも空いているので、車をお持ちの方は検討してみてはいかがですか♪2つの路線をご利用できる場所にあり、アクセスはとても便利です♪時間を気にせず利用する事が出来る24時間利用可能♪オフィス街の地域となっているのでIT向け♪ロードサイド店舗は高い集客率を誇ります(*^_^*)

| 所在地 | 大阪府大阪市北区西天満5丁目 | ||
|---|---|---|---|
| 交通 | |||
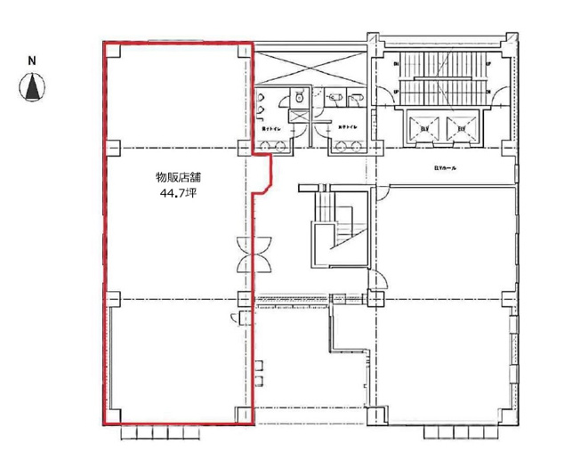
| 坪数(面積) | 44.70坪(147.76㎡) | ||
| 賃料/坪単価 | 要相談/要相談 | 管理費・共益費 | 147,510円 |
| 敷金/礼金/保証金 | -/0ヶ月/894万円 | 償却/敷引 | -/- |
| 更新料 | - | 権利金/雑費 | -/- |
| 造作譲渡金 | - | 駐車場/月額料金 | 空有(4台)/25,000円 (税込) |
| 保険加入/料金 | 有/- | 保険名/保険期間 | -/- |
| 保証人代行義務 | - | 保証会社 | - |
| 保証会社詳細 | - | 向き | - |
| 築年月(築年数) | 1978年 10月 (築47年) | 契約期間 | 2年 |
| 種別/構造 | 店舗事務所/鉄骨鉄筋コンクリート | 用途地域 | - |
| 部屋/所在階/階建 | 2階/2階/9階建 地下1階 | 総戸数 | - |
| 現況/引渡時期 | 空家/相談 | 取引態様 | 一般媒介 |
| 物件番号 | 94323760 | 取引条件の有効期限 | 2026年04月26日 |
| 設備条件 |
|
||
| 備考 | 雨が続いてジメジメしていてもエアコンが付いていれば快適に過ごせます。4台分の駐車スペースが現在空き状態になっております。周辺に駅が二つあり、交通の利便性が高いです。周辺には、徒歩2分で利用できる駅があります。時間帯に縛られる事のない24時間利用可能。広々とした室内となっておりますのでスクール向けです。ロードサイド店舗は高い集客率を誇ります。 | ||
| 取扱会社 |
|
||
| QRコード |
このQRコードを読み取ることで、スマホでも物件情報を確認できます。 |
||
※地図上に表示される物件の位置は付近住所に所在することを表すものであり、実際の物件所在地とは異なる場合がございます。
南森町パークビルに関するこだわり条件から探す
大阪市北区以外の市区町村から探す